The Midland Legacy: A Legacy Client Experience in Midland, Texas

Project Snapshot

Location: Midland, Texas

Interior Design: Laura Weaver

Graceful Spaces Services:Building Luxury · Sourced by Graceful Spaces · Signature Organizing


Welcome to The Midland Legacy Home Tour — a two-part story that begins long before move-in.

This first phase invites you into the Legacy Client Experience — the strategy, planning, and partnership that quietly shaped this home from the earliest stages of renovation. Long before installation began, each space was thoughtfully considered to ensure it would not only be beautiful, but deeply supportive of the family’s daily life.

In Phase Two, we’ll reveal the finished home — where those early decisions come to life through systems that now support the household with ease, rhythm, and intention.

Because in homes like this, organization is never a finishing touch. It’s part of the foundation — one that begins well before the first item is ever placed.

And to truly understand how this home came to life, we begin there.


The Legacy Client Experience

The Legacy Client Experience exists for families who want their home supported at every stage — from early planning and product sourcing to installation and long-term refinement. Rather than approaching organization as a final step, the work begins earlier, protecting the functionality of the home before key design decisions become permanent.

Clients typically enter this experience through Building Luxury, where our team reviews floor plans, cabinetry layouts, and storage opportunities during the design phase. At this stage, we help clients think through the operational details that rarely appear on construction drawings — how the household will travel, host, store seasonal items, and move through the rhythms of daily life.

From there, projects often transition into Sourced by Graceful Spaces, where our team fully equips the home with everything needed to support daily living. This includes everything from everyday essentials like paper goods and cleaning supplies to bath linens, travel accessories, and hosting pieces. If it lives in the home, and isn’t furniture or clothing, our team sources it.

Homes of this caliber often take 9–12 months, sometimes longer, to fully curate and equip. From sourcing everyday essentials to coordinating pieces from across the country and around the world, it’s a process that requires significant time, energy, and attention to detail.

Rather than managing that after move-in, the home is intentionally provisioned from the start, so every space is ready to function the moment clients walk through the door.

Beyond daily living, we think ahead—removing the weight from our clients by sourcing everything needed for holidays, celebrations, and seasonal routines. For many of our Legacy clients, they step into a new home with their clothing and meaningful belongings—Graceful Spaces thoughtfully handles the rest.

Finally, the home comes to life through Signature Organizing, where every system is installed, styled, and tailored to the rhythms of the household. This is where the vision is realized—where the systems thoughtfully planned during the design phase take shape through carefully selected bins, baskets, and layouts that support daily life.

For many families, the relationship continues beyond installation through seasonal refreshes, evolving family needs, and coordination across multiple properties.

For the family behind The Midland Legacy, the experience began with a simple realization: they didn’t just want a beautifully designed home, they wanted a home that would function thoughtfully from the moment they walked through the door.

LEARN MORE ABOUT FULL-SERVICE SUPPORT BY GS


The Midland Legacy - Where the Story Begins

The Midland Legacy began as the renovation of a historic home in Midland, Texas. The property includes the primary residence, a connected guest house, expansive garage space, and attic storage designed to support the family’s long-term needs.

While preparing for the renovation, the client was researching resources that could help her think more intentionally about how the home would function once construction was complete. During a flight, she came across Graceful Spaces while searching online and immediately felt that this was exactly the type of support she had been hoping to find for their new home.

During our early conversations, she shared that the home-building process already felt overwhelming. With so many design decisions to manage, she was looking for guidance in thinking through the operational details of the home—how spaces would actually support daily life once the renovation was complete. This renovation represented a new chapter. After fourteen years in their previous home, they approached the move with a clear intention: this would be a fresh start.

Like many families navigating a major renovation, the homeowners were balancing countless decisions while also preparing for a significant life transition. They wanted their new home to feel intentional from the very beginning — not something they would spend years slowly organizing after move-in.

Very little from the previous home would transition into the new one. Aside from clothing, jewelry, and a few meaningful keepsakes, the household would be thoughtfully rebuilt from the ground up. This decision allowed the planning process to focus entirely on what the home should become — rather than adapting systems around what already existed.

PLANNING FOR THE LIFE INSIDE THE HOME

Because the homeowners chose to bring very little from their previous residence — aside from clothing, jewelry, and a few meaningful personal pieces — the new home offered a rare opportunity. Rather than designing systems around existing belongings, the planning process could begin with a blank canvas, allowing every space to be considered intentionally from the start. 

For this family, daily life includes frequent travel, extended visits from family, and a steady rhythm of hosting guests. The household regularly welcomes overnight visitors, gatherings with friends, and even sports teams passing through Midland. Understanding this rhythm became central to how the home would ultimately function.

In total, the planning process for the home included roughly twenty to thirty hours of Building Luxury development as we walked through the home space by space, exploring how each area could function at its highest potential.

Instead of beginning with product or containers, the planning process began with movement — how the family would return home from trips, where guests would settle in, and how seasonal belongings would rotate throughout the year. 

These conversations shaped how key areas of the home were designed long before installation began. The attic above the garage was planned to accommodate seasonal décor, ski equipment, travel systems, holiday storage, and overflow wine, while the garage itself required thoughtful operational planning to support household inventory, hobbies, and hosting supplies.

Addressing these needs early ensured the home would function seamlessly over time, quietly supporting the rhythms of daily life long after the renovation was complete.

 

Before we step into how this home was shaped, it’s worth noting—this level of support begins with a conversation.

If you’re in a season of building, renovating, or preparing for what’s next, our team is here to help you think through the details early—so your home can support you from the very beginning.

START YOUR INQUIRY

 

Building Luxury IN ACTION

With the operational vision for the home taking shape, the Building Luxury phase allowed these insights to influence the renovation itself. During this stage, our team reviewed the home’s floor plans and worked alongside the design process to identify moments where organization could meaningfully shape how the home would function once the family moved in.

Because the home had originally been designed by a well-known architect, preserving the integrity of the structure was extremely important to the family. This meant that several spaces required thoughtful planning to ensure they could function well for a modern household without altering the home’s original character.

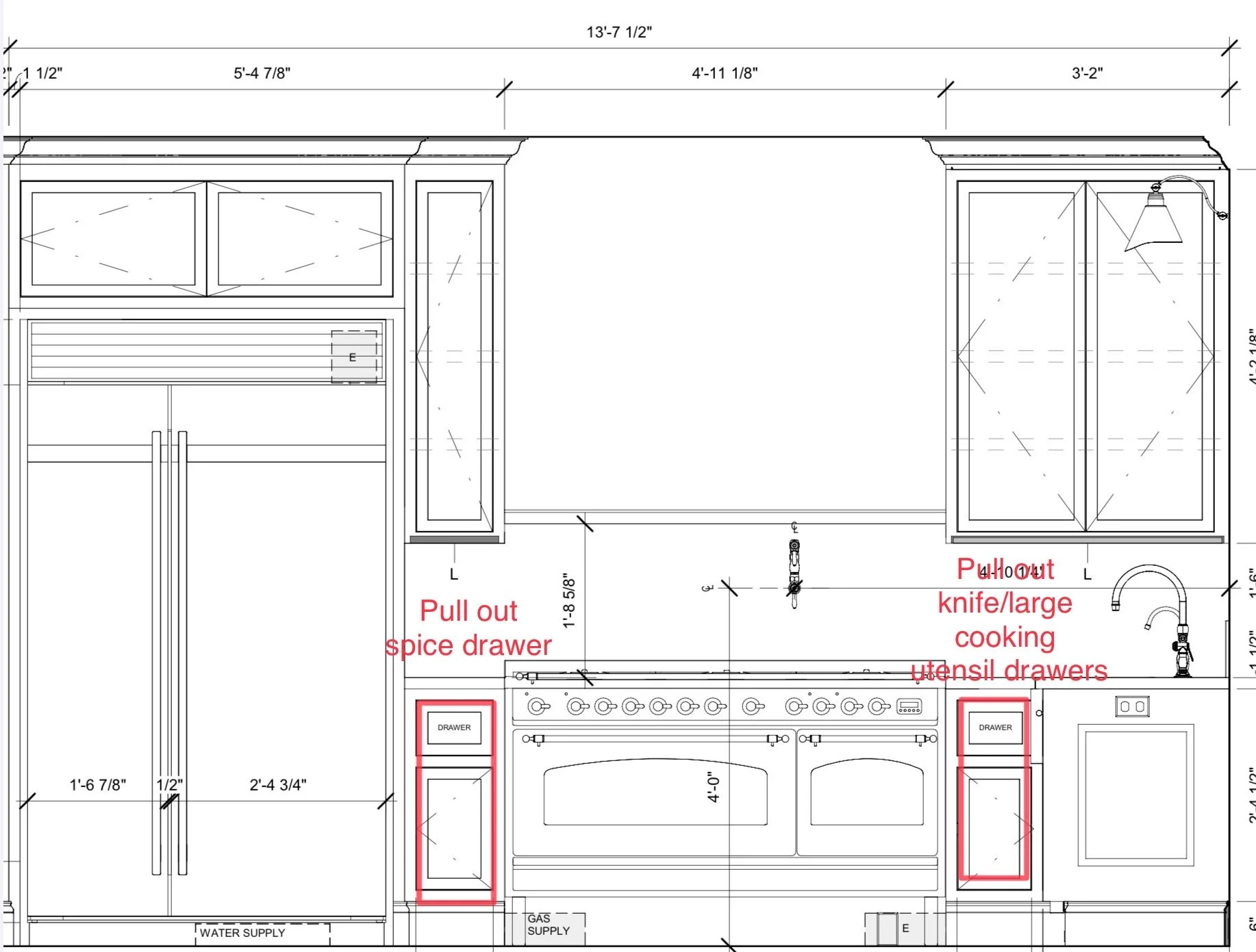
The kitchen became one of the most important areas of focus. With a slightly tighter footprint, every cabinet needed to serve a clear purpose. Planning early allowed us to protect the functionality of the space before cabinetry decisions were finalized. 

Closets throughout the home were also thoughtfully evaluated, ensuring they would support the family’s wardrobe while preserving the historic character of the house. Several spaces required creative solutions that balanced modern functionality with the architectural integrity of the property.

One particularly memorable moment came during a conversation about the garage. While discussing how the family hosts gatherings, the homeowner shared her love for arranging florals before guests arrive. In previous homes, preparing flowers often meant taking over the kitchen or laundry room. 

Together we realized the garage offered an opportunity to support this ritual in a more thoughtful way. A dedicated sink was incorporated into the space, creating a place where floral arrangements could be prepared comfortably without disrupting the home’s main living areas. Surrounding storage was then designed to support vases, tools, and supplies — a small but meaningful example of how thoughtful planning can quietly elevate everyday life.

CURATING THE HOME

During the planning process, the client shared that she and her husband had been living with many of the same belongings since the early years of their marriage. As they prepared for the move, they saw the renovation as an opportunity to intentionally start fresh—bringing only a small portion of their belongings with them and thoughtfully rebuilding the household from the ground up.

Through Sourced by Graceful Spaces, our team curated and procured nearly every item the family would need to live in the home from the moment they arrived. In fact, this project became the largest Sourced engagement Graceful Spaces has completed to date.

Aside from furniture, there was virtually no category of the home left untouched. 

From organizational systems and household essentials to travel gear, linens, and hosting details, thousands of individual items were thoughtfully selected to support the rhythms of the household. Each decision was made with the same guiding principle that shaped the earlier planning phases: the home should function seamlessly for the life unfolding inside it.

Travel systems were curated to support the family’s frequent trips, while linens, organizational product, and everyday essentials were selected to align with the home’s aesthetic and operational flow. Rather than filling cabinets after installation, the sourcing process allowed the household to be carefully composed — ensuring every drawer, closet, and storage area was prepared with intention.

Sourced Highlights

While thousands of items were thoughtfully selected throughout the home, several details illustrate the level of care that shaped the process. Highlights from the sourcing phase include:

  • Customized travel systems and personalized luggage from AWAY

  • Luxury toiletry and travel accessories from Leatherology

  • Curated hosting essentials designed to support both large gatherings and intimate overnight stays

  • Luxury dinnerware by Ginori 1735

  • Hand-blown glassware by William Yeoward

  • Classic yet versatile tabletop pieces from Juliska, selected to support a variety of hosting moments throughout the year

  • Elevated outdoor and recreational essentials from Recess

  • A curated collection of games from Mark & Graham

 

What It Took to Bring This Home to Life 

An operation of this scale requires thoughtful planning long before installation begins. The Midland Legacy project unfolded across three phases and required coordination across multiple Graceful Spaces departments. 

With a traveling team working on site in Midland, thousands of sourced household items had to be received, organized, packed, transported, and delivered in sequence so each phase of the project could move forward as the home neared completion.

BRINGING THE SYSTEMS TO LIFE

With planning complete and the household carefully curated, the final phase of the Legacy Client Experience began: installation.

Through Signature Organizing, every system that had been envisioned during the earlier phases was thoughtfully brought to life inside the home. This stage is where strategy becomes reality — where cabinetry is filled, closets take shape, and the home begins to quietly support the rhythms it was designed for.

Because the project had been carefully planned months in advance, installation moved with clarity and intention. Every drawer, shelf, and cabinet already had a purpose. Rather than experimenting with where things might fit, the team was able to implement systems that had been thoughtfully designed around the household’s routines from the beginning.

Closets were arranged to support the family’s wardrobes and travel habits. Guest spaces were prepared so visitors could arrive comfortably without the family needing to reorganize each time. Kitchen zones were established to support both daily cooking and larger gatherings, while storage throughout the home was prepared to accommodate seasonal transitions and long-term household inventory.

This phase is often where clients experience the most visible transformation. Yet the true success of the work is not simply what the spaces look like when the project is complete. It is how naturally the home functions in the weeks and months that follow.

A well-organized home should not require constant attention. 

When systems are thoughtfully designed, they quietly support the household — making it easier to find what is needed, maintain order, and move through daily routines without friction.

For this family, installation was the moment when months of planning finally came together. Cabinets that had once been empty began to reflect the life that would unfold inside them. Closets were filled with wardrobes ready for everyday life and travel. Guest spaces were stocked to welcome family and friends.

The house was no longer simply a renovation project. It had become a home prepared to be lived in. Later, the client shared that the final reveal brought her to happy tears—not only for her, but for her entire family.


The Value of the Legacy Client Experience

Projects like The Midland Legacy illustrate what the Legacy Client Experience is designed to provide.

Building a home requires thousands of decisions, many of which quietly shape how the household will function for years to come. By supporting clients throughout the entire process — from early planning and sourcing to installation — our team helps reduce the decision fatigue that often accompanies a project of this scale.

This level of involvement allows families to focus on the bigger vision for their home while our team thoughtfully considers the operational details that bring it to life.

More importantly, it ensures the home is not only beautifully designed, but truly curated for the life unfolding inside it. Systems are shaped around routines, storage is planned for real use, and everyday needs are anticipated long before move-in.

The result extends far beyond traditional organizing.

Graceful Spaces becomes a trusted partner in the client journey — helping families create homes that support their time, energy, and daily life for years to come, and establishing a foundation worthy of the home’s legacy.


Coming Next: Stepping Inside The Midland Legacy

Phase One of The Midland Legacy offers a look behind the scenes — the strategy, planning, and coordination that shaped the home long before installation began.

In Phase Two, we’ll step inside the spaces themselves, exploring the systems that now support the household day to day. From the kitchen and closets to guest spaces, travel systems, and long-term storage, each area reflects the same thoughtful planning that guided the project from the very beginning.

Next
Next

Under-Sink Serenity: A Guide to Organizing Your Bathroom Cabinet